提问网友:壹砾
提问日期:2025-12-06 10:58:47
图1是结构楼面标高,只能看到负一层的标高是“基础顶面”
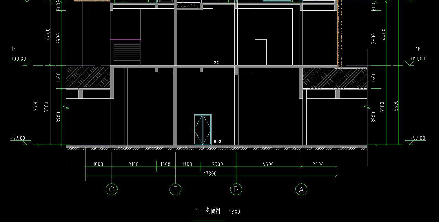
图2是楼层的剖面图,可以看到地下室的地面标高是-5.500
图3是筏板基础的信息,为什么这里的“筏板顶标高”是269.800,变成了正数,筏板基础不应该在地下室的地面之下吗?
图4和图5都是负一层平面图的信息,分别是消防水池和消防水泵房的标高,为什么也是正数?
已采纳
解答网友:走出工地
白银专家
269.800是绝对标高;-5.5是相对标高。
需要在图纸总说明里找一下,相对标高和绝对标高对应的高度值。
解答网友:小野猫
铂金专家
筏板顶标高”是269.800,是绝对标高,要换算成相对标高的
解答网友:养家糊口做预算
专家
你看一下正负零的相对标高是多少,然后根据筏板顶标高换算就是-多少米了









评论0