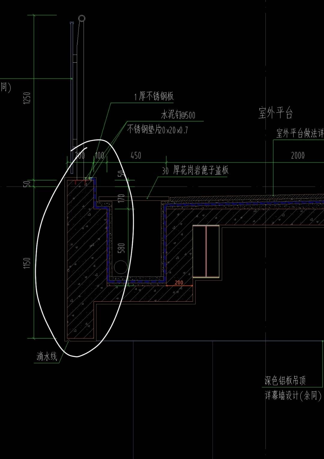
答疑:这两个位置浇结构图和建筑图不一样按哪个

提问网友:花生酱
提问日期:2025-12-01 20:02:12

结构图答疑解惑


解答网友:欢乐心中飞雪

钻石专家

结构

解答网友:GXZ

钻石专家

应该是咨询设计确定

解答网友:陈工

钻石专家

一般是按结构图的。

0

评论0

请先
GB50150-2024 电气装置安装工程电气设备交接试验标准,替代原2016版
GB50150-2024 电气装置安装工程电气设备交接试验标准,替代原2016版
10分钟前 有人购买 去瞅瞅看
没有账号?注册  忘记密码?

社交账号快速登录

微信扫一扫关注
扫码关注后会自动登录网站