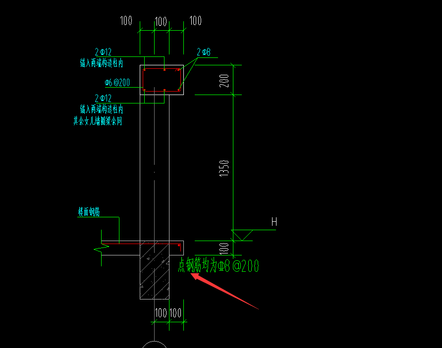
答疑:这里要把面筋的布筋范围拉到挑檐这吗

提问网友:何胜
提问日期:2025-10-02 17:07:37

挑檐檐


已采纳
解答网友:钢筋撑起半边天

钻石专家

要的

解答网友:SOFTICE

黄金专家

可以,一起布置

解答网友:GXZ

钻石专家

面筋选择多板布置,挑檐板钢筋就布置到了

解答网友:欢乐心中飞雪

钻石专家

需要的

0

评论0

请先
工业与民用供配电设计手册第四版软件包+培训录音+软件使用手册
工业与民用供配电设计手册第四版软件包+培训录音+软件使用手册
1分钟前 有人购买 去瞅瞅看
没有账号?注册  忘记密码?

社交账号快速登录

微信扫一扫关注
扫码关注后会自动登录网站