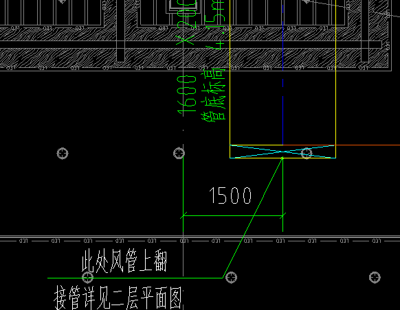
答疑:风管上翻高度怎么算,管底标高为4.15

提问网友:企鹅
提问日期:2025-10-02 17:32:47

管底


解答网友:xagcc

钻石专家

告诉你了,详见二层平面图

解答网友:大海

钻石专家

查二层的数据。

0

评论0

请先
T/CECS 1262-2023 拱桥缆索吊运系统应用技术规程-建筑标准 - 规章规范
T/CECS 1262-2023 拱桥缆索吊运系统应用技术规程-建筑标准 - 规章规范
3分钟前 有人购买 去瞅瞅看
没有账号?注册  忘记密码?

社交账号快速登录

微信扫一扫关注
扫码关注后会自动登录网站