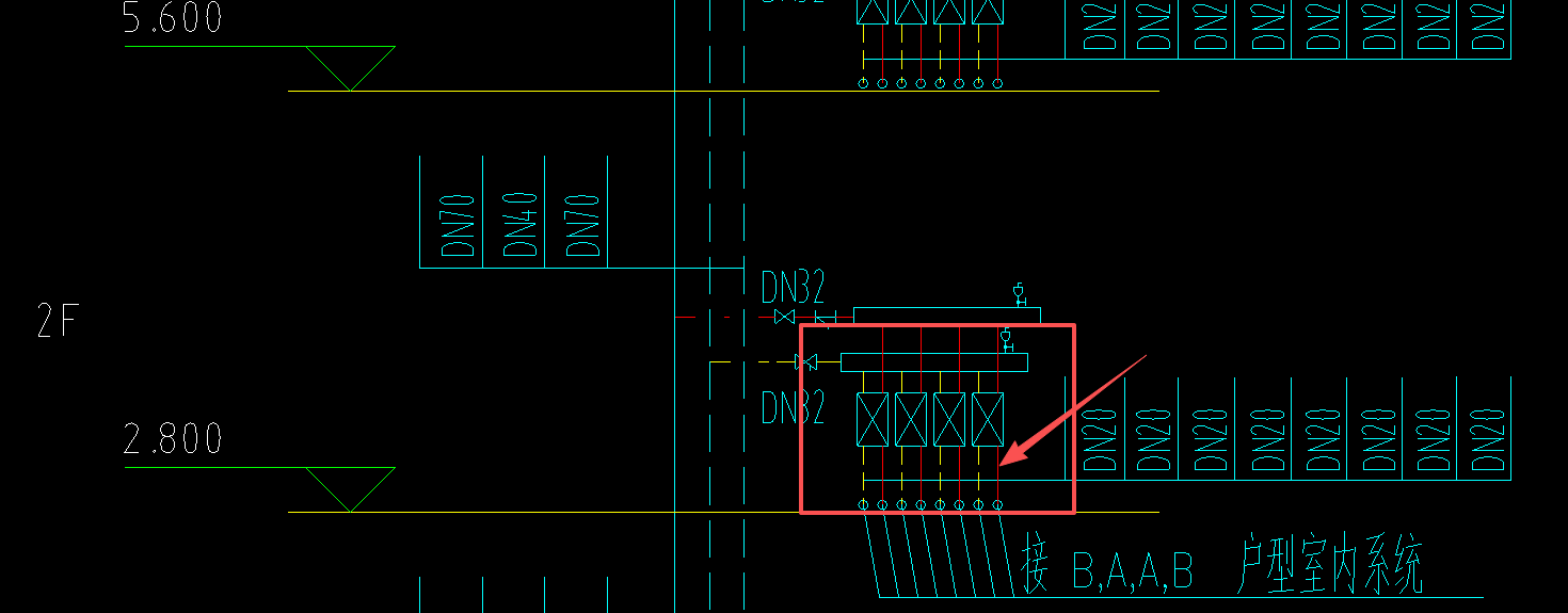
答疑:请问分集水器接户型埋地管这里需要算立管吗,给多长的立管呢

提问网友:木索
提问日期:2025-10-02 17:32:39

分集水器

立管


解答网友:欢乐心中飞雪

钻石专家

不用计算了,直接使用平面图中标注的长度即可

解答网友:大海

钻石专家

要加上垂直方向的管道。长度截图中有。

0

评论0

请先
国家电网配电网工程标准施工工艺图册合集下载(2024版,全四册)
国家电网配电网工程标准施工工艺图册合集下载(2024版,全四册)
刚刚 有人购买 去瞅瞅看
没有账号?注册  忘记密码?

社交账号快速登录

微信扫一扫关注
扫码关注后会自动登录网站