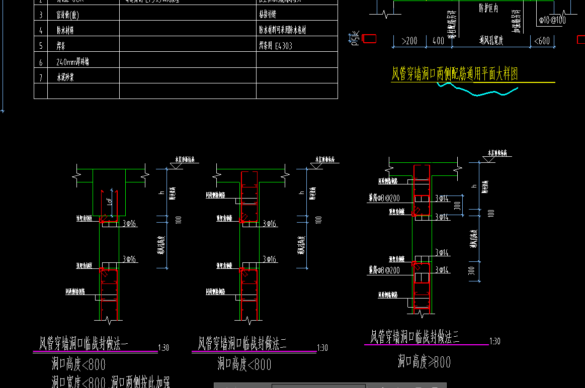
答疑:图中有风井洞口和顶板洞口临战封堵的做法,现在预算要不要算这部分?

提问网友:11111
提问日期:2025-10-02 17:25:27

板洞顶板

因为我看这部分是混凝土的结构做法,是不是应该计算,只是说中间封堵的材料和做法才不用计算,但是外围框构造是要计算工程量,希望根据截图的大样给出解答。


解答网友:xagcc

钻石专家

都要计算的

解答网友:GXZ

钻石专家

现在是不需要计算的,这是在遇到有战争时才做的封堵

0

评论0

请先
GB 50487-2008 (2023年版修订) 水利水电工程地质勘察规范
GB 50487-2008 (2023年版修订) 水利水电工程地质勘察规范
1分钟前 有人购买 去瞅瞅看
没有账号?注册  忘记密码?

社交账号快速登录

微信扫一扫关注
扫码关注后会自动登录网站