答疑:剪力墙墙洞加强柱梁用什么建

提问网友:一杯苦咖啡
提问日期:2025-10-02 15:41:40

剪力墙

墙洞


已采纳
解答网友:薛子庆

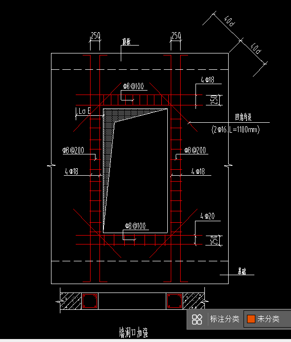
黄金专家

两侧用暗柱,下部用梁,上部按截图就可以

解答网友:雪花飘 飘

铂金专家

暗柱,暗梁

0

评论0

请先
高清、无水印 21J925-2 金属面夹芯板建筑构造(替代01J925-1、 06J925-2、08J925-3、OCR完整版).pdf
高清、无水印 21J925-2 金属面夹芯板建筑构造(替代01J925-1、 06J925-2、08J925-3、OCR完整版).pdf
1分钟前 有人购买 去瞅瞅看
没有账号?注册  忘记密码?

社交账号快速登录

微信扫一扫关注
扫码关注后会自动登录网站