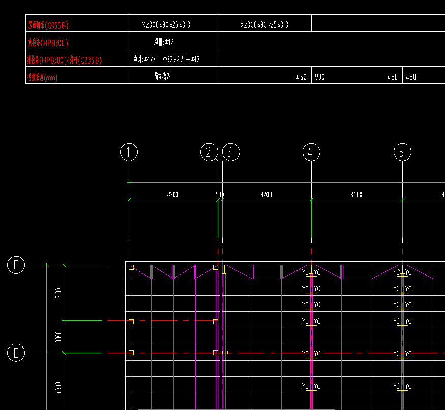
答疑:直拉条是竖着的紫线吗?斜拉条同理?双排A12如何设置,又如何建模呢?

提问网友:李峥
提问日期:2025-10-02 15:39:34

双排


解答网友:xagcc

钻石专家

直接表格算量中计算吧

解答网友:陈工

钻石专家

两根檩条之是直拉的,斜拉是对角线的。长度不相同的。

解答网友:杨华

白银专家

答疑解惑

调整‘150’高度,重复布置;

0

评论0

请先
DZ/T 0401-2022 矿山地质工作规范.pdf
DZ/T 0401-2022 矿山地质工作规范.pdf
6分钟前 有人购买 去瞅瞅看
没有账号?注册  忘记密码?

社交账号快速登录

微信扫一扫关注
扫码关注后会自动登录网站