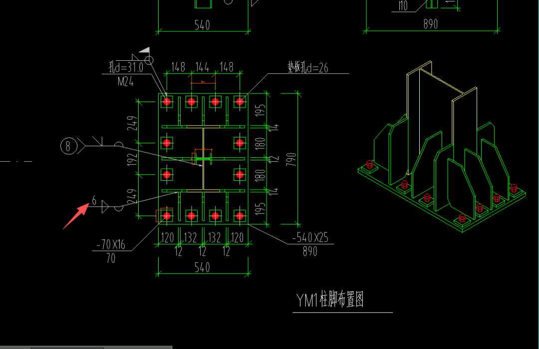
答疑:钢结构这个板子叫啥名字(箭头指的)

提问网友:红鲤鱼与绿鲤鱼
提问日期:2025-12-12 11:59:10

钢结构


已采纳
解答网友:小四眼

白银专家

加劲板

解答网友:SOFTICE

铂金专家

加劲肋

解答网友:钢筋撑起半边天

钻石专家

加劲柱脚板

0

评论0

请先
QGDW 10813-2023 10kV架空绝缘线路防雷技术规范
QGDW 10813-2023 10kV架空绝缘线路防雷技术规范
5分钟前 有人购买 去瞅瞅看
没有账号?注册  忘记密码?

社交账号快速登录

微信扫一扫关注
扫码关注后会自动登录网站