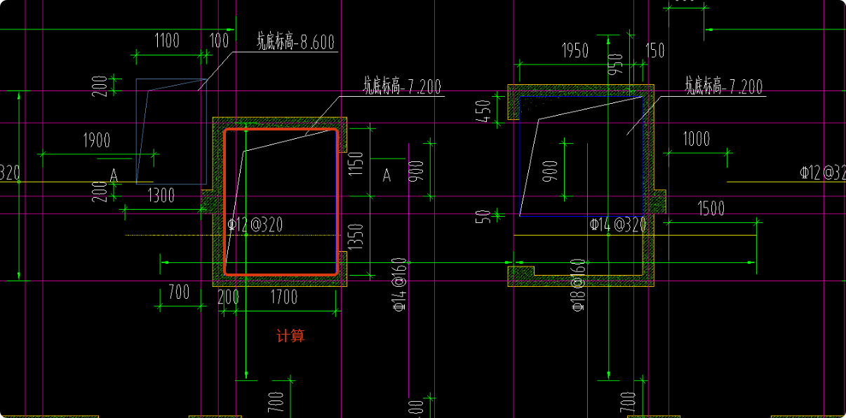
答疑:请问图纸的集水坑截面尺寸应该是多少,可以直接测量吗?

提问网友:刘卫平
提问日期:2025-12-05 16:18:22

集水坑


解答网友:钢筋撑起半边天

钻石专家

可以 图纸应该会给出尺寸的

解答网友:小野猫

铂金专家

蓝色矩形,有标注的,也可以测量的

解答网友:SOFTICE

铂金专家

截面尺寸

解答网友:雪花飘 飘

铂金专家

这个是电梯基坑,看文字标注,结合建筑图。

0

评论0

请先
正式版 DL/T 2588-2023 火力发电厂桥式抓斗卸船机运行检修导则.pdf
正式版 DL/T 2588-2023 火力发电厂桥式抓斗卸船机运行检修导则.pdf
3分钟前 有人购买 去瞅瞅看
没有账号?注册  忘记密码?

社交账号快速登录

微信扫一扫关注
扫码关注后会自动登录网站