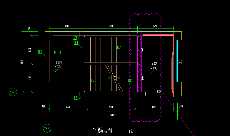
答疑:楼梯的踢脚线是不是如图所示

提问网友:西步飒那
提问日期:2025-12-05 16:06:45

踢脚楼梯的踢脚


解答网友:Bel

白银专家

是的

解答网友:王文学

白银专家

不是,在踏步、平台板上面

解答网友:星霜荏苒

钻石专家

答疑解惑

解答网友:雪花飘 飘

铂金专家

踢脚线在踏步上方和休息平台四周

0

评论0

请先
QGDW-10381.6-2024输变电工程施工图设计内容深度规定第6部分:330kV~750kV变电站
QGDW-10381.6-2024输变电工程施工图设计内容深度规定第6部分:330kV~750kV变电站
6分钟前 有人购买 去瞅瞅看
没有账号?注册  忘记密码?

社交账号快速登录

微信扫一扫关注
扫码关注后会自动登录网站