提问网友:泡泡
提问日期:2025-12-05 15:39:17
解答网友:执伞
白银专家
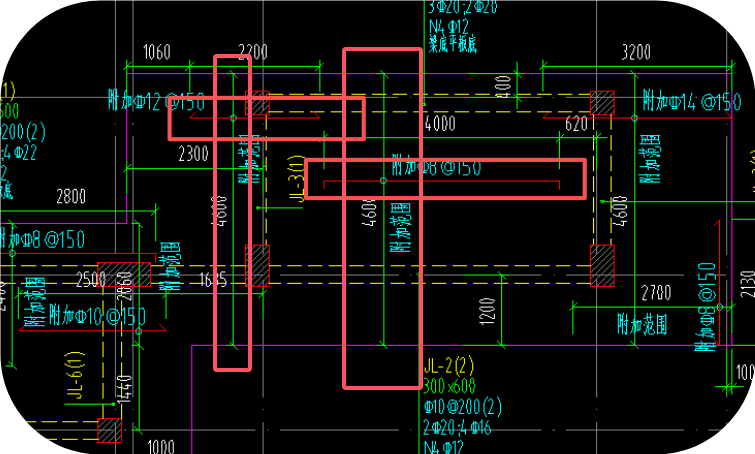
附加范围
解答网友:星辰大海
钻石专家
自定义范围布置
解答网友:王文学
白银专家
自定义范围布置
解答网友:钢筋撑起半边天
钻石专家
给了范围,底部附加用筏板负筋定义,直线直接画出范围 面部附加用筏板面筋定义,锚固里输入0 用自定义画出布筋的范围
解答网友:星霜荏苒
钻石专家
与钢筋方向垂直,标有小圆圈的绿色线 是布置范围,可以 自定义范围、垂直(或水平)布置
解答网友:nh
钻石专家
提问网友:泡泡
提问日期:2025-12-05 15:39:17
解答网友:执伞
白银专家
附加范围
解答网友:星辰大海
钻石专家
自定义范围布置
解答网友:王文学
白银专家
自定义范围布置
解答网友:钢筋撑起半边天
钻石专家
给了范围,底部附加用筏板负筋定义,直线直接画出范围 面部附加用筏板面筋定义,锚固里输入0 用自定义画出布筋的范围
解答网友:星霜荏苒
钻石专家
与钢筋方向垂直,标有小圆圈的绿色线 是布置范围,可以 自定义范围、垂直(或水平)布置
解答网友:nh
钻石专家
评论0