BIM
BIM吧
整体模型
族
其他资料
Dynamo
设计
方案
整体场景
单体模型
RHINO
施工图设计
结构
机电设计
材质渲染
D5素材
ENS素材专区
lumion素材
PS素材
规范图集
标准规范
行业图集
教程
视频
软件
Office
编程
造价
施工技术
计量计价
造价答疑
在线工具
管理
登录
注册
搜索
当前位置:
首页
造价
造价答疑
正文
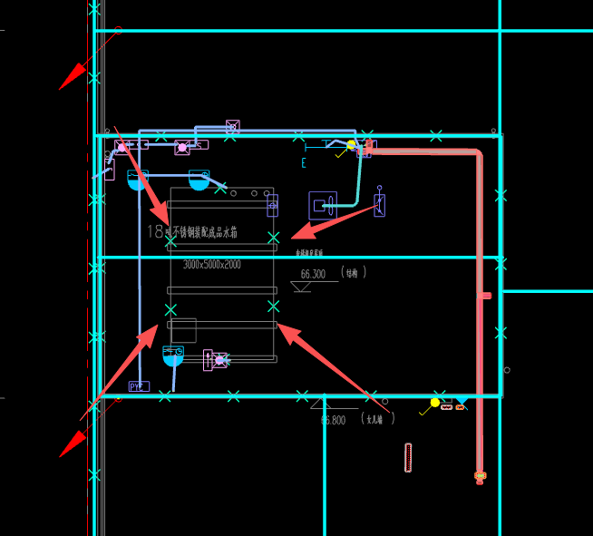
答疑:请问各位专家,这个图一防雷接地的线是不是如图二那样连接
2天前
造价答疑
2
推广
提问网友:YYY
提问日期:2025-12-05 09:34:14
解答网友:芋头
铂金专家
是的
0
上一篇
答疑:这个节点是什么
下一篇
答疑:地下一层的楼层设置是图中-1F的标高吗,那基础层如何设置(最高的基础高1200)
猜你喜欢
造价答疑
答疑:剪力墙水平钢筋计入约束边缘柱配筋率隔一代一时,水平钢筋端头锚固怎么不是隔一改变的
提问网友:刘华奇提问日期:2025-12-07 15:25:08剪力墙水平钢筋计入约束边缘柱配筋...
2天前
3
造价答疑
答疑:板支座负筋与面筋间隔排布
提问网友:小预算提问日期:2025-12-07 15:27:43面筋与板支座负筋间隔布置怎么布置...
2天前
2
造价答疑
答疑:请问下清单项目特征中的部位不一致,但是做法和材料规格都一致,报价可不可以进行调整
提问网友:李飞提问日期:2025-12-07 15:27:47解答网友:七月 ...
2天前
2
造价答疑
答疑:图中30厚水泥砂浆的这一步骤我套的定额合适吗?
提问网友:!_ !提问日期:2025-12-07 15:28:19解答网友:清欢 ...
2天前
2
造价答疑
答疑:坏桩孔要回填回灌后重新钻的,是可以计取混凝土量吗
提问网友:刘琦提问日期:2025-12-07 15:30:07已采纳解答网友:xagcc ...
2天前
2
造价答疑
答疑:电梯井道钢筋
提问网友:lb提问日期:2025-12-07 15:32:18各位老师,从电梯井道大样图来看,红色...
2天前
2
评论
0
请先
登录
新22J01 工程做法-新疆维吾尔自治区工程建设标准设计-2022系列建筑标准设计图集
6分钟前 有人购买
去瞅瞅看
在线客服
升级VIP
返回顶部
没有账号?
注册
忘记密码?
社交账号快速登录
已有账号?
登录
社交账号快速登录
微信扫一扫关注
扫码关注后会自动登录网站
使用其他方式登录/注册
评论0