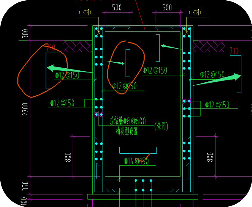
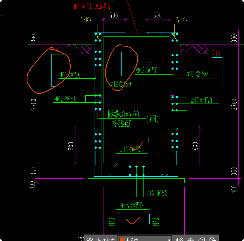
答疑:水池加强筋未标钢筋规格,这怎么看

提问网友:曙光千寻
提问日期:2025-12-05 08:36:30

钢筋规格

2025-12-05 08:38:33 补充

水池答疑解惑


已采纳
解答网友:钢筋撑起半边天

钻石专家

都有呀,不属于加强筋  就是竖向筋和底筋、顶板筋

广联达服务新干线

解答网友:xagcc

钻石专家

这是所关联的钢筋的弯折形式

解答网友:下雨天

白银专家

弯折形状的旁边的钢筋不就是它的规格信号和间距的显示吗

0

评论0

请先
清晰无水印 09DX003 民用建筑工程电气施工图设计深度图样( 书签).pdf
清晰无水印 09DX003 民用建筑工程电气施工图设计深度图样( 书签).pdf
刚刚 有人购买 去瞅瞅看
没有账号?注册  忘记密码?

社交账号快速登录

微信扫一扫关注
扫码关注后会自动登录网站