提问网友:LDF
提问日期:2025-12-03 09:46:52


2025-12-03 09:51:21 补充
2025-12-03 09:52:08 补充
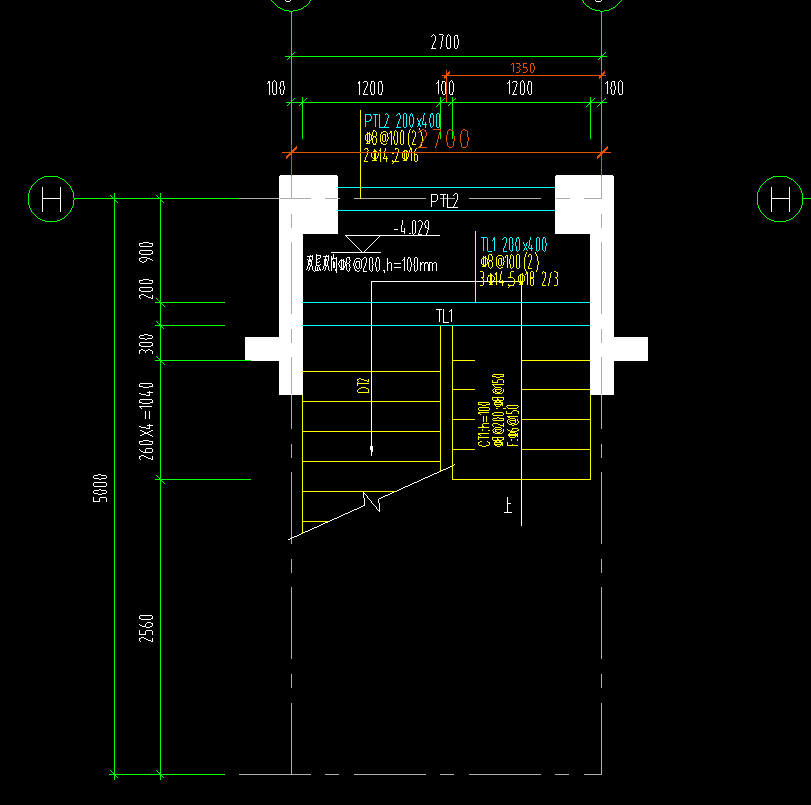
补充图片里面的三个钢筋怎么输入
解答网友:大家广联
钻石专家
写着呢 DT CT
解答网友:十年工程人
白银专家
解答网友:nh
钻石专家
解答网友:陈工
钻石专家
左、右各一跑的,组合的定义布置。
提问网友:LDF
提问日期:2025-12-03 09:46:52


2025-12-03 09:51:21 补充
2025-12-03 09:52:08 补充
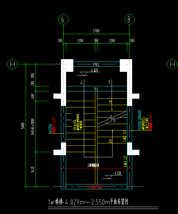
补充图片里面的三个钢筋怎么输入
解答网友:大家广联
钻石专家
写着呢 DT CT
解答网友:十年工程人
白银专家
解答网友:nh
钻石专家
解答网友:陈工
钻石专家
左、右各一跑的,组合的定义布置。
评论0