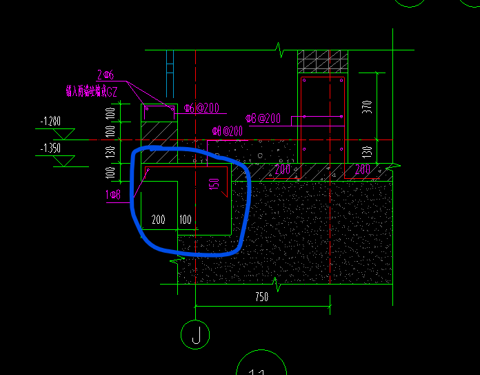
答疑:画圈的这个构件应该怎么画?

提问网友:hekk
提问日期:2025-12-03 08:34:18

构件


解答网友:星霜荏苒

钻石专家

梁+挑檐

解答网友:孤心酒灌人心

专家

答疑解惑广联达服务新干线

解答网友:Bel

专家

异形挑檐,截面编辑钢筋

解答网友:文竹

白银专家

异形栏板,钢筋截面编辑

解答网友:雪花飘 飘

铂金专家

挑板用异形挑檐定义

0

评论0

请先
新22S3 室外排水工程-新疆维吾尔自治区工程建设标准设计-2022 系列给排水标准设计图集
新22S3 室外排水工程-新疆维吾尔自治区工程建设标准设计-2022 系列给排水标准设计图集
8分钟前 有人购买 去瞅瞅看
没有账号?注册  忘记密码?

社交账号快速登录

微信扫一扫关注
扫码关注后会自动登录网站