提问网友:dlqx123
提问日期:2025-12-02 15:02:52
解答网友:xagcc
钻石专家
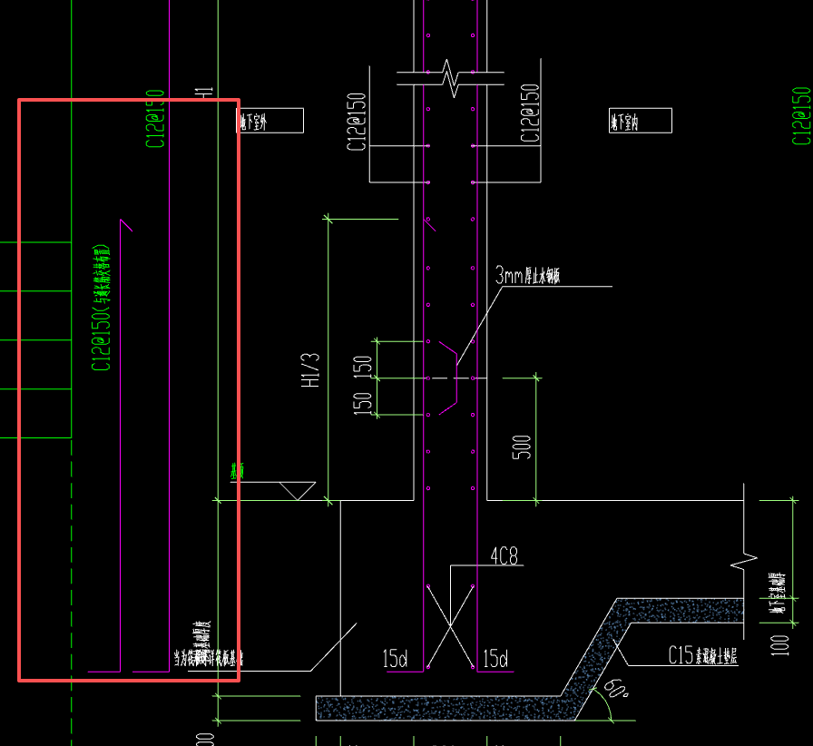
其它钢筋中输入垂直加强筋
解答网友:钢筋撑起半边天
钻石专家
附加的短竖筋在其它钢筋里输入 间距定义正确就可以了
解答网友:dahu
黄金专家
通长钢筋在剪力墙的垂直钢筋中输入,不通长钢筋在剪力墙的其它钢筋中软件,设置为垂直加强筋。
解答网友:nh
钻石专家
是附加的,在其它钢筋内设置
解答网友:星霜荏苒
钻石专家
短的C12@150S属于垂直加强筋,在 其它钢筋 里输,长度=H/3+基础高度-底部保护层+弯折15d; 通长的垂直筋在属性里–垂直分布筋 输信息; 施工时两种钢筋隔一布一









评论0