提问网友:匿名用户
提问日期:2025-12-02 10:32:59
已采纳
解答网友:雪花飘 飘
铂金专家
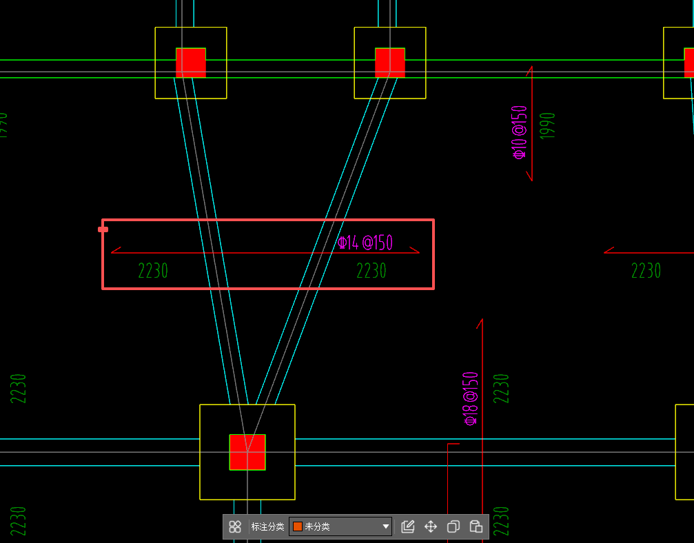
筏板主筋,自定义范围布置
解答网友:欢乐心中飞雪
钻石专家
这个应该是用跨板受力筋布置的
解答网友:GXZ
钻石专家
可以定义筏板受力钢筋,选择自定义范围布置
解答网友:钢筋撑起半边天
钻石专家
用自定义画出布筋的范围
解答网友:dahu
黄金专家
用跨板受力筋来布置(筏板的跨板受力筋,也是布置在底部的)。按中间的三角形状的筏板进行布置。
解答网友:石姐
铂金专家
跨板受力筋啊
跨这一块的三角形板




评论0