提问网友:徐
提问日期:2025-11-30 16:16:09
解答网友:星辰大海
钻石专家
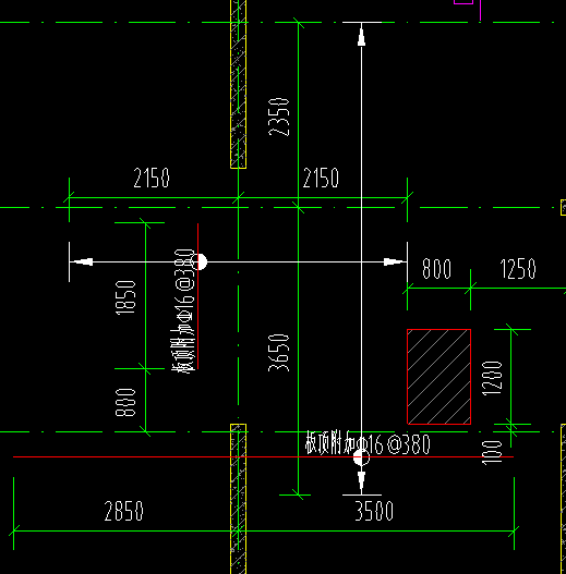
自定义范围布置
解答网友:大家广联
钻石专家
定义筏板主筋 属性改为 面筋 用自定义 范围布置方法布置
解答网友:钢筋撑起半边天
钻石专家
筏板顶上的附加筋用筏板面筋定义 自定义里画出布筋的范围 锚固里调整为0
请注意筏板顶上的附加筋 不是筏板负筋 筏板负筋是布在筏板的底部的
解答网友:雪花飘 飘
铂金专家
面加筋。筏板主筋定义。自定义范围布置
解答网友:GXZ
钻石专家
筏板基础面部受力钢筋自定义范围布置




评论0