提问网友:郭丶令
提问日期:2025-12-01 08:59:31
解答网友:雪莲
铂金专家
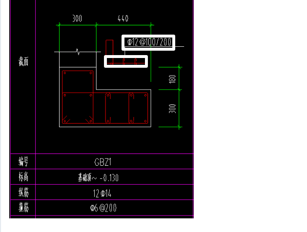
里面的拉筋还是C6-200
解答网友:星霜荏苒
钻石专家
只有横向箍筋是12的,其余未注明的箍筋和拉筋都按C6@200
解答网友:石姐
铂金专家
只是这箍筋变成12的啦
其他的额不变
解答网友:GXZ
钻石专家
这样的标注让人无法理解,看说明或者咨询设计
解答网友:钢筋撑起半边天
钻石专家
内箍和拉筋都不变
解答网友:星辰大海
钻石专家
拉筋不用,
解答网友:十年工程人
白银专家
不用 拉筋是c6-200





评论0