答疑:条基咋配筋啊

提问网友:刘77
提问日期:2025-11-30 12:15:35

条基配筋


解答网友:薛子庆

黄金专家

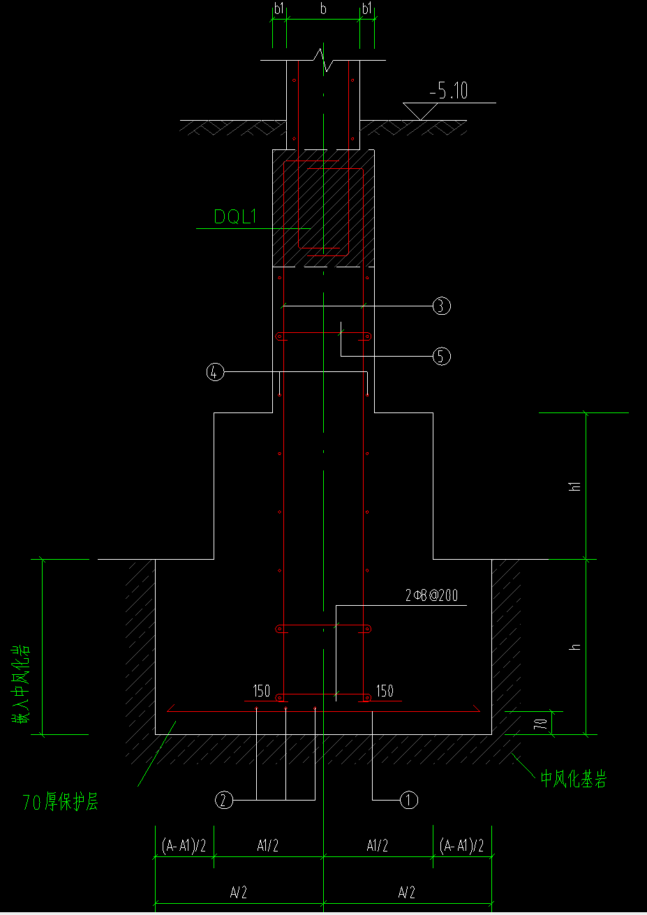
1#受力筋2#分布筋,3#墙垂直筋4#水平筋5#拉筋

解答网友:星霜荏苒

钻石专家

1是受力筋,2是分布筋

0

评论0

请先
彩色高清18J811-1(2019更正版)建筑设计防火规范图示图集 替代 13J811-1改.pdf
彩色高清18J811-1(2019更正版)建筑设计防火规范图示图集 替代 13J811-1改.pdf
6分钟前 有人购买 去瞅瞅看
没有账号?注册  忘记密码?

社交账号快速登录

微信扫一扫关注
扫码关注后会自动登录网站