答疑:采暖分集水器管道

提问网友:Do
提问日期:2025-11-29 14:03:01

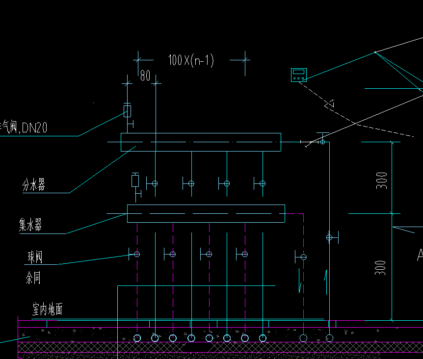
请问这些紫色蓝色立管是属于加热管PE材质的还是属于从电暖井出来连接集水器PPR管材质的

分集水器


解答网友:xagcc

钻石专家

是进入室内分集水器到地辐热管道

PPR材质

解答网友:幸福像花一样

钻石专家

这些紫色蓝色立管是属于加热管PE材质的

0

评论0

请先
国家电网公司配电网工程典型设计全套CAD图纸
国家电网公司配电网工程典型设计全套CAD图纸
10分钟前 有人购买 去瞅瞅看
没有账号?注册  忘记密码?

社交账号快速登录

微信扫一扫关注
扫码关注后会自动登录网站