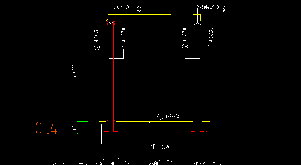
答疑:请教各位,这种圆形检查井如何手算底板单根钢筋长度

提问网友:絙人
提问日期:2025-11-28 14:02:07

手算


解答网友:大庆张工

白银专家

(长度-保护层)/间距+1=根数

根数*(宽度-保护层)

0

评论0

请先
GB/T50854-2024房屋建筑与装饰工程工程量计算标准-在线版全网首发,附送2024版清单全集10册OCR可搜索版及最全对比表PDF下载
GB/T50854-2024房屋建筑与装饰工程工程量计算标准-在线版全网首发,附送2024版清单全集10册OCR可搜索版及最全对比表PDF下载
刚刚 有人购买 去瞅瞅看
没有账号?注册  忘记密码?

社交账号快速登录

微信扫一扫关注
扫码关注后会自动登录网站