答疑:斜屋顶绘制钢筋定义

提问网友:CYZ
提问日期:2025-11-27 09:56:45

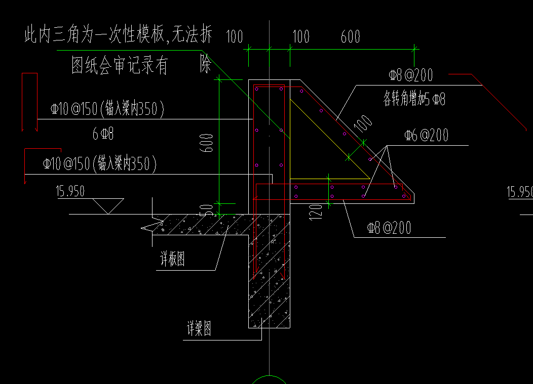
这是一个斜屋顶,我用栏板画可以么?里面的钢筋像我截面编辑里的一样绘制可以么?

栏板

截面

答疑解惑

2025-11-27 09:59:39 补充

广联达服务新干线


解答网友:钢筋混凝土

专家

可以

解答网友:十年工程人

白银专家

你这样画  模板工程量是对的吗

钢筋其实可以用暗梁画  

解答网友:放学丶别走

可以的,工程量不少就行。

0

评论0

请先
2024版《江苏省工程勘察设计收费导则》(OCR).pdf
2024版《江苏省工程勘察设计收费导则》(OCR).pdf
6分钟前 有人购买 去瞅瞅看
没有账号?注册  忘记密码?

社交账号快速登录

微信扫一扫关注
扫码关注后会自动登录网站