提问网友:要云博
提问日期:2025-11-27 10:18:12
解答网友:十年工程人
白银专家
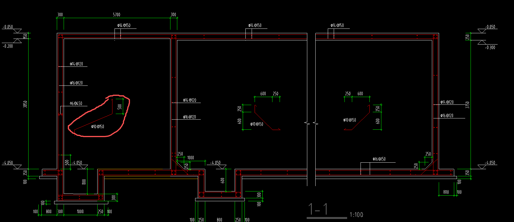
剪力墙底部加腋筋
解答网友:小雨
白银专家
询设计吧,应该没有
解答网友:下雨天
白银专家

解答网友:zhangy
黄金专家
画圈的钢筋没有找到,询问一下设计人员。
提问网友:要云博
提问日期:2025-11-27 10:18:12
解答网友:十年工程人
白银专家
剪力墙底部加腋筋
解答网友:小雨
白银专家
询设计吧,应该没有
解答网友:下雨天
白银专家

解答网友:zhangy
黄金专家
画圈的钢筋没有找到,询问一下设计人员。
评论0