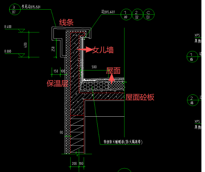
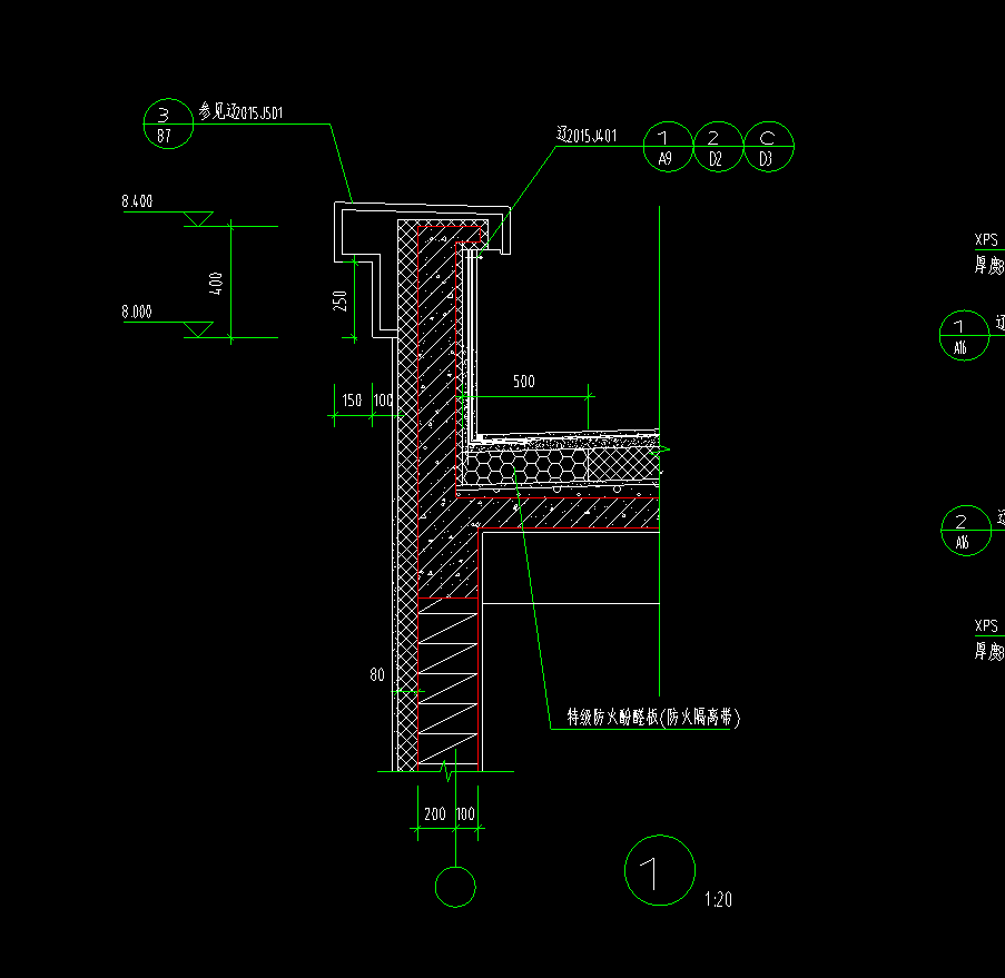
答疑:这个挑檐怎么画,我看不明白图纸

提问网友:ﯩﯩﯩ
提问日期:2025-11-26 18:07:55

挑檐檐


解答网友:米老鼠

铂金专家

建筑图结合结构图去先定义和画女儿墙

女儿墙外面做的是保温层,用墙面去定义和画,顶部外侧是线条,

可以手工计算,也可以用自定义线去画

答疑解惑

解答网友:十年工程人

白银专家

剪力墙加异型圈梁

0

评论0

请先
国家电网配电网设备标准化设计定制方案四册打包全集!
国家电网配电网设备标准化设计定制方案四册打包全集!
9分钟前 有人购买 去瞅瞅看
没有账号?注册  忘记密码?

社交账号快速登录

微信扫一扫关注
扫码关注后会自动登录网站