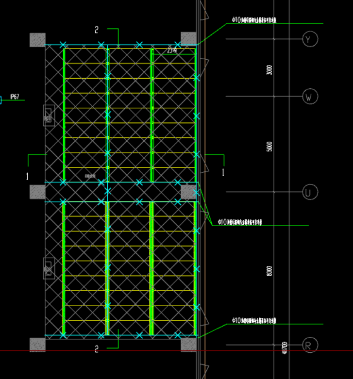
答疑:这个避雷网是用镀锌方管的吗?

提问网友:小新
提问日期:2025-11-26 17:03:14

镀锌方管镀锌


解答网友:酸橘子

专家

不是,那个应该是结构的柱子。

解答网友:0524

不是 是镀锌圆钢

解答网友:米老鼠

铂金专家

不是的

答疑解惑

解答网友:蓝鲸

钻石专家

是米子线的镀锌圆钢

回答正确望采纳并点赞,因为每一个专家都是免费服务

0

评论0

请先
高清PDF Q/GDW 10738-2020 配电网规划设计技术导则
高清PDF Q/GDW 10738-2020 配电网规划设计技术导则
9分钟前 有人购买 去瞅瞅看
没有账号?注册  忘记密码?

社交账号快速登录

微信扫一扫关注
扫码关注后会自动登录网站