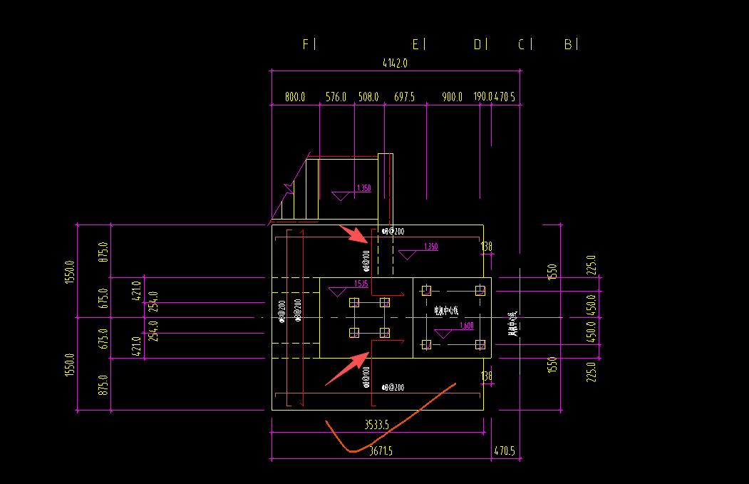
答疑:这种现浇板钢筋如何布置?

提问网友:Rainbow
提问日期:2025-11-24 08:34:42

现浇板


解答网友:下雨天

白银专家

板面标高不一致吧,一个锚固下去了

解答网友:十年工程人

专家

两边的悬挑板的受力筋,布置面积设置锚固长度

0

评论0

请先
走出造价困境-土建审计的黑与白,造价必备,PDF下载
走出造价困境-土建审计的黑与白,造价必备,PDF下载
刚刚 有人购买 去瞅瞅看
没有账号?注册  忘记密码?

社交账号快速登录

微信扫一扫关注
扫码关注后会自动登录网站