刚性连接与铰性连接
 钢结构中,梁与柱的连接通常采用3种形式,柔性连接(也称铰接)、半刚性连接和刚性连接。在工程实践中,如何判别一个节点属于刚性、半刚性或铰接连接主要是看其转动刚度 ,刚性连接应不会产生明显的连接夹角变形,即连接夹角变形对结构抗力的减低应不超过5%。
半刚性连接则介于二者之间。
 梁柱的半刚性连接可以采用在梁端焊上端板,用高强螺栓连接,或是用连于翼缘的上、下角钢和高强螺栓。其设计要求如下:
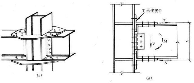
 (1)端板连接 在端板连接节点中力的传递可将梁端弯矩简化为一对力偶,拉力经受受拉翼缘传递。受拉螺栓对受拉翼缘对称布置。压力可以通过端板或柱翼缘承压传递,压力区螺栓可少量设置,并和受拉螺栓一起传递剪力。
 (2)上下角钢连接 用上下角钢连接的节点中,受拉一侧的连接角钢在弯矩作用下,不仅竖肢变形,水平肢也变形。因此,角钢连接的刚度比端板者稍低。
 连接性质的划分应由下列三项指标来表征:抗弯刚度,转动刚度,延性(转动能力)。
 抗弯承载力是连接强度的主要项目,此外还有抗剪强度。刚性连接从理论上来说,承受弯矩和剪力的能力应该不低于梁的承载能力,亦即不低于梁的塑性铰弯矩和腹板全塑性剪力。地震区的框架应该要求更高,体现“强连接-弱构件”的原则。对于柔性连接则只要求其抗剪能力。半刚性连接介于刚性和柔性连接之间,必须具有一定的抗弯能力。
 连接的转动刚度由弯矩-转角曲线的斜率来体现,它不是常量,转动刚度对框架变形和承载力都有影响。对变形的影响需要结合正常使用极限状态进行分析。为此,应考察连接的初始刚度或标准荷载作用下的割线刚度。刚性连接的刚度,理论上需要达到无限大,但实际上只要达到一定的限值就可以看作是刚性连接,问题在于如何从数量上做出界定。
 转动能力属于延性指标,塑性设计的框架要求塑性铰部位有一定转动能力,以便后续的内力重分布能够出现。
 1.刚性连接这种构造假定梁柱连接有足够的刚性,梁柱间无相对转动,连接能承受弯矩。铰支连接这种构造假定结构承受重力荷载时,主梁和柱之间只传递垂直剪力,不传递弯矩。这种连接可以不受约束的转动。
 2.在钢结构框架的传统分析与设计中,为简化分析设计过程,梁柱连接被认作理想的铰接连接或完全的刚性连接,并且认为:连接对转动约束达到理想刚接的90%以上,可视为刚接;在外力作用下,柱梁轴线夹角的改变量达到理想铰接的80%以上的连接视为铰接。采用理想铰接的假定,将意味着梁与柱之间没有弯矩的传递,就转动而论,用铰连在一起的梁和柱将相互独立地转动.
 能抵抗弯矩作用的柱脚称为刚接柱脚,相反不能抵抗弯矩作用的柱脚称为铰接柱脚,刚接与铰接的区别在于是否能传递弯矩,从实际上看,如果锚栓在翼缘的外侧,就是刚接,而且一般不少于四个,如果在翼缘内侧,就是铰接,一般为两个或四个。
 这两种柱脚很明显的区别就是对侧移控制,如果结构对侧移控制较严,则采用刚接柱脚,例如有吊车荷载的情况,吊车荷载是动力荷载,对侧移比较敏感,而且侧移过大会造成吊车卡轨现象,此时应把柱脚设计成刚接柱脚。
 “如果是铰接柱脚需要加设抗剪键,地脚螺栓不能承受剪力的”本人的这句话说得有点不严谨,应该说“如果是铰接柱脚一般需要加设抗剪键”。因为钢结构铰接柱脚的柱脚轴力比较小,底板和基础砼表现的摩擦力很少能满足要求,所以多数柱脚都需要设置抗剪键
刚接与铰接的区别:
 1.刚接能传递弯矩合剪力,铰接则只能传递剪力.
 2.二者在构造上也有区别:刚接如为H型钢则其上下翼缘和腹板均需有连接构造;铰接如为H型钢则只需腹板有连接构造即可.
对于柱脚受力分为:
 (a) 铰接柱脚 (b) 刚接柱脚
 砼结构柱脚均为刚接,即同时存在轴向力N、水平剪力V和弯矩M,故基础尺寸较大。
 轻钢结构常见的柱脚型式有刚接和铰接两种,其受力是不同的,
 1、对于铰接柱脚, 只存在轴向力N和水平力
 2、对于刚接柱脚,除存在轴向力N和水平力V之外,还存在一定的弯矩M,
 3、刚接柱脚的基础大于铰接柱脚。
另外请注意:
 对于刚接柱脚的节点设计:
 1、当用于工业厂房且有桥式吊车时,宜将柱脚设计为刚性。
 2、刚性柱脚应注意以下问题:
 基础施工单位应有一定的技术水平
应设置抗剪件
 * 关于刚接、铰接的问题, 理论上说,刚接铰接是指节点是否能转动,完全刚接指完全不转动,铰接是可自由转动。完全刚接就是说此节点不但能承担剪力 轴力 弯矩外,节点还具有足够刚度。使节点在弯矩作用下变形很小。理论上说,没有完全的刚接,只要有作用就有变形,在实际工程中,达到一定的刚度后,我们在工程中就认为是刚接了,如果虽然能承担弯矩,但变形较大,我们认为是半刚接,是弹性固定。
 铰接好理解,可自由转动,就是不能承担弯矩,那么就只能抗剪力和轴力了。具体到一个构件,如工字型构件,翼缘主要受弯,腹板主要受剪。由于此处讨论的一些同志没有学过力学,我就浅显的讲一下,对于弯矩,离形心轴越远的地方,弯矩贡献越大,所以翼缘离形心最远弯矩贡献大。剪应力在形心处最大,所以腹板主要受剪。一般地讲,具体到节点,如端板连接,凡在翼缘外布置有螺栓的,端板厚度满足要求的,就为刚接。铰接节点螺栓布置在靠近形心轴处。



 
                 
                 
                 
                 
                

评论0