提问网友:头发竖起
提问日期:2026-01-12 21:24:46
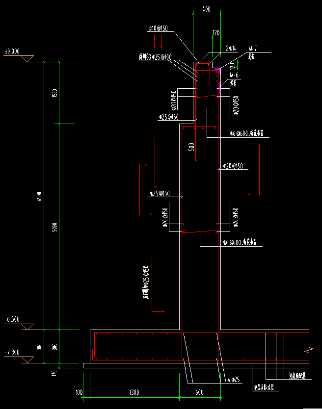
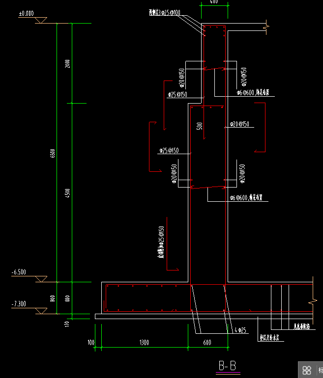
如图:1、变截面按分标高处理,竖向和水平钢筋按节点处理,0.0米顶部内止口120*120mm位置如何处理?2、顶部3c25@100,和底部4C25按暗梁处理吗?3、侧面加强筋是否在其他钢筋里面布置;4、剪力墙内侧竖向钢筋不足9米,如分标高分段设置,就会出现接头处理,如何设置为整段钢筋?
已采纳
解答网友:欢乐心中飞雪
钻石专家
-
可以考虑布置壁龛
-
可以用暗梁布置的,这样比较准确,简单的方法可以输入在压墙筋中
-
是在其他钢筋输入计算
-
设置搭接方式为焊接就不影响工程量的,不计算搭接的
解答网友:星辰大海
钻石专家
分段建墙构件






评论0