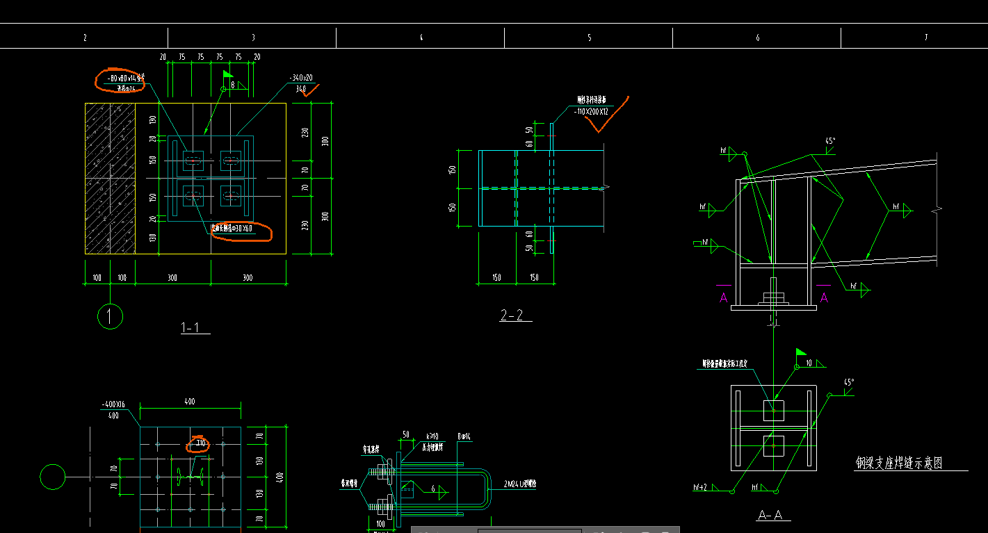
答疑:钢梁是到红线这里截止吗?黄色圈里一共有几块钢板?包括另一侧

提问网友:新手
提问日期:2025-12-29 09:12:19

答疑解惑

2025-12-29 09:16:05 补充

广联达服务新干线


解答网友:竹风

白银专家

这个节点一般都有深化图

解答网友:zhangy

黄金专家

画圈的连接钢板也包含在钢梁中一起计算。

解答网友:xagcc

钻石专家

需要看节点详图的

解答网友:机器猫

白银专家

算钢结构要看深化图,或者自己推导数据,不能直接从图上量,以前遇到从图上量数据的,我就让他把节点板和上下翼缘的钢板厚度也按量的数据算给我

0

评论0

请先
中建五局施工方案编制指南(2023年版)1041P.pdf
中建五局施工方案编制指南(2023年版)1041P.pdf
1分钟前 有人购买 去瞅瞅看
没有账号?注册  忘记密码?

社交账号快速登录

微信扫一扫关注
扫码关注后会自动登录网站