答疑:钢筋规格

提问网友:平常心
提问日期:2025-12-28 11:36:41

钢筋规格

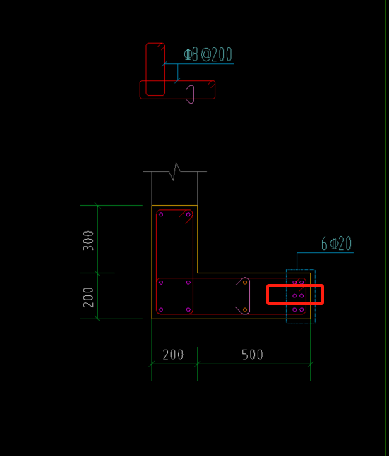
请问这种规格的钢筋,咱们软件能处理吗?如何处理?谢谢!


解答网友:钢筋撑起半边天

钻石专家

29的直径没有吧

答疑解惑

解答网友:雪花飘 飘

铂金专家

没有这种钢筋规格

0

评论0

请先
实用!继保大神自己写的继电保护教案(完整精华版) 
实用!继保大神自己写的继电保护教案(完整精华版) 
3分钟前 有人购买 去瞅瞅看
没有账号?注册  忘记密码?

社交账号快速登录

微信扫一扫关注
扫码关注后会自动登录网站