提问网友:王语嫣
提问日期:2025-12-27 14:37:21
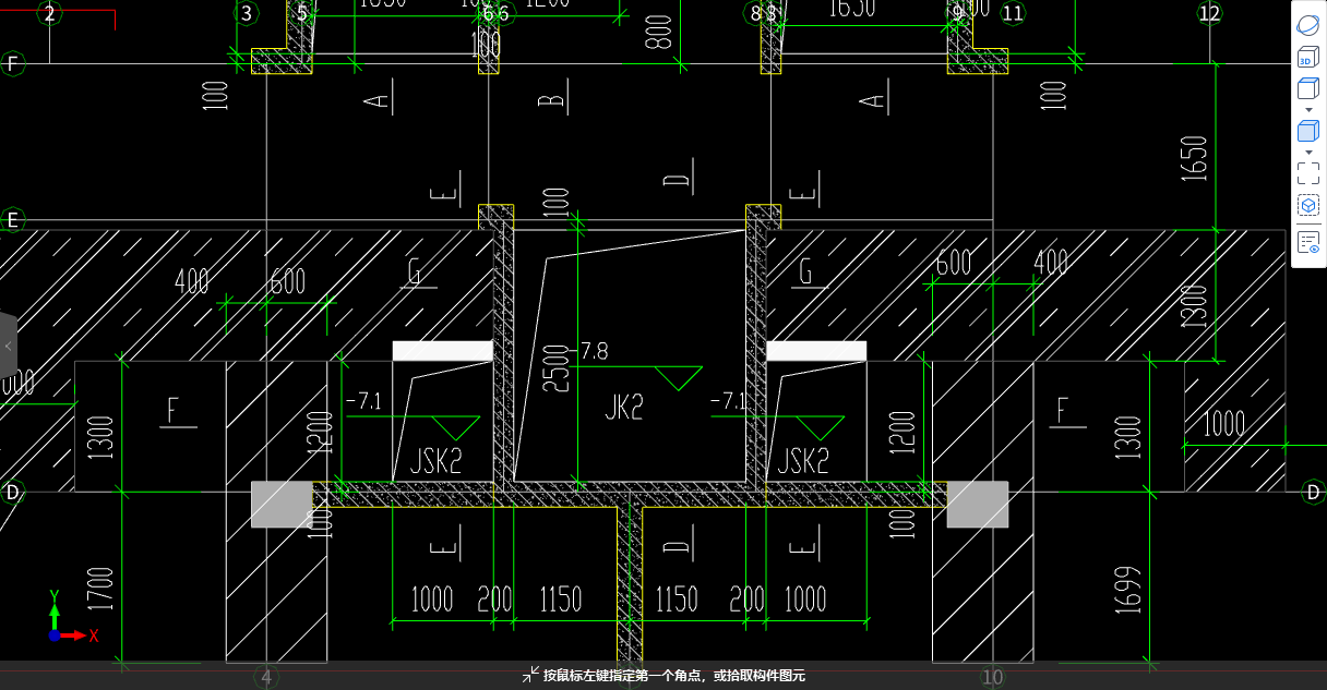
这应该怎么布置?
2025-12-27 14:59:59 补充

解答网友:钢筋撑起半边天
钻石专家
按平面图中的尺寸考虑
解答网友:这不会那不会反正不会
白银专家
按平面图的尺寸布置
提问网友:王语嫣
提问日期:2025-12-27 14:37:21
这应该怎么布置?
2025-12-27 14:59:59 补充

解答网友:钢筋撑起半边天
钻石专家
按平面图中的尺寸考虑
解答网友:这不会那不会反正不会
白银专家
按平面图的尺寸布置
评论0