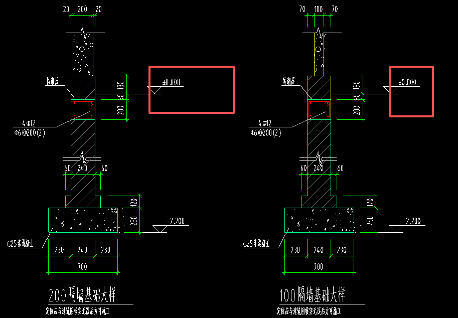
答疑:室外地坪-0.6,节点隔墙下是砖墙,说明是砌块,-0.06有梁是砼与保温砌块冲突

提问网友:123
提问日期:2025-12-12 17:35:44

砼室外地坪答疑解惑广联达服务新干线


解答网友:米老鼠

铂金专家

隔墙应该是室内,就是内墙

你第一个图中画框的部分是指室外,就是外墙

0

评论0

请先
电力钢结构焊接通用技术条件  DL/T 678-2023
电力钢结构焊接通用技术条件 DL/T 678-2023
6分钟前 有人购买 去瞅瞅看
没有账号?注册  忘记密码?

社交账号快速登录

微信扫一扫关注
扫码关注后会自动登录网站