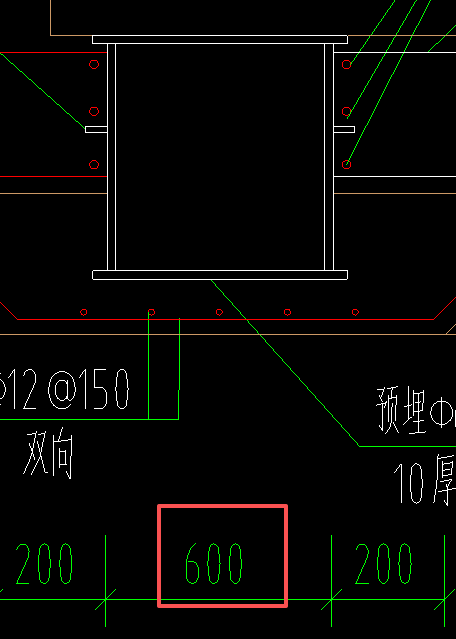
答疑:450是什么意思,钢管都R=600了

提问网友:l
提问日期:2025-12-12 17:04:11

钢管答疑解惑


解答网友:蓝鲸

钻石专家

表示环筋环的直径

回答正确望采纳并点赞,因为每一个专家都是免费服务

0

评论0

请先
国家电网有限公司输变电工程通用设计 新型电力系统220kV变电站分册 (2024年版)
国家电网有限公司输变电工程通用设计 新型电力系统220kV变电站分册 (2024年版)
5分钟前 有人购买 去瞅瞅看
没有账号?注册  忘记密码?

社交账号快速登录

微信扫一扫关注
扫码关注后会自动登录网站