答疑:图纸中GZ代表什么柱?

提问网友:柠萌萌
提问日期:2025-12-12 09:35:28

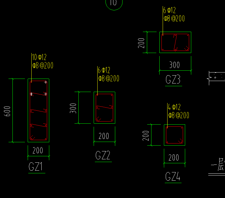
请问图纸中标注的GZ代表什么柱,看配筋图不像是构造柱。

配筋图构造柱


已采纳
解答网友:张张

黄金专家

就是构造柱

0

评论0

请先
GB/T 25993-2023 透水路面砖和透水路面板-建筑标准 - 建材标准
GB/T 25993-2023 透水路面砖和透水路面板-建筑标准 - 建材标准
5分钟前 有人购买 去瞅瞅看
没有账号?注册  忘记密码?

社交账号快速登录

微信扫一扫关注
扫码关注后会自动登录网站