提问网友:行歌,
提问日期:2025-12-11 09:25:11

解答网友:SOFTICE
铂金专家
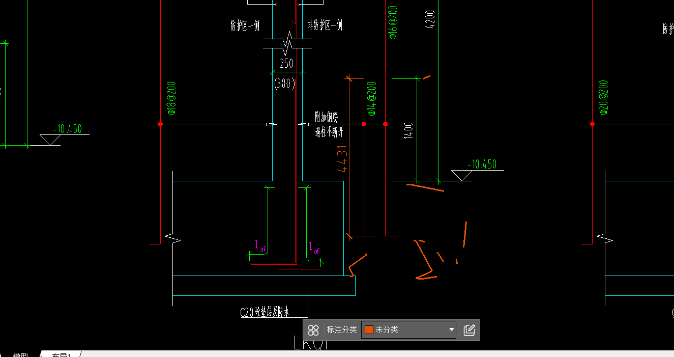
图示尺寸画
解答网友:GXZ
钻石专家
不需要扩大构造柱
解答网友:陈工
钻石专家
按图示尺寸画的。
解答网友:钢筋撑起半边天
钻石专家
扩大圈出来的处理 现场不可能在柱子外边补墙
提问网友:行歌,
提问日期:2025-12-11 09:25:11

解答网友:SOFTICE
铂金专家
图示尺寸画
解答网友:GXZ
钻石专家
不需要扩大构造柱
解答网友:陈工
钻石专家
按图示尺寸画的。
解答网友:钢筋撑起半边天
钻石专家
扩大圈出来的处理 现场不可能在柱子外边补墙
评论0