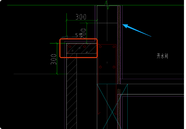
答疑:这个节点是什么样的箭头那里没钢筋的算不算

提问网友:汉江河堤
提问日期:2025-12-08 15:44:36

箭头


解答网友:大家广联

钻石专家

保温板及墙面装饰面层

解答网友:钢筋撑起半边天

钻石专家

钢筋不算   保温板及墙面装饰面层要算

解答网友:广联

专家

答疑解惑

解答网友:雪花飘 飘

铂金专家

节点用异形挑檐定义,箭头处是内保温。

0

评论0

请先
22J403-1楼梯 栏杆 栏板(一)PDF下载
22J403-1楼梯 栏杆 栏板(一)PDF下载
5分钟前 有人购买 去瞅瞅看
没有账号?注册  忘记密码?

社交账号快速登录

微信扫一扫关注
扫码关注后会自动登录网站