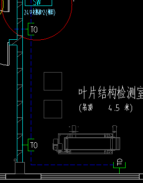
答疑:请问这是什么图例

提问网友:..
提问日期:2025-12-07 22:17:46

图例答疑解惑


已采纳
解答网友:星辰大海

钻石专家

空调内机

解答网友:独行者

铂金专家

室内空调机柜

解答网友:造价人职场充电宝

白银专家

上图红圈中的图例对应的是静压箱,它是恒温恒湿空调系统中的核心辅助构件之一。

0

评论0

请先
DB54/T 0275-2023 民用建筑节能技术标准-建筑标准 - 地方其他
DB54/T 0275-2023 民用建筑节能技术标准-建筑标准 - 地方其他
8分钟前 有人购买 去瞅瞅看
没有账号?注册  忘记密码?

社交账号快速登录

微信扫一扫关注
扫码关注后会自动登录网站