提问网友:YYY
提问日期:2025-12-05 14:05:56

解答网友:我心长宽
专家
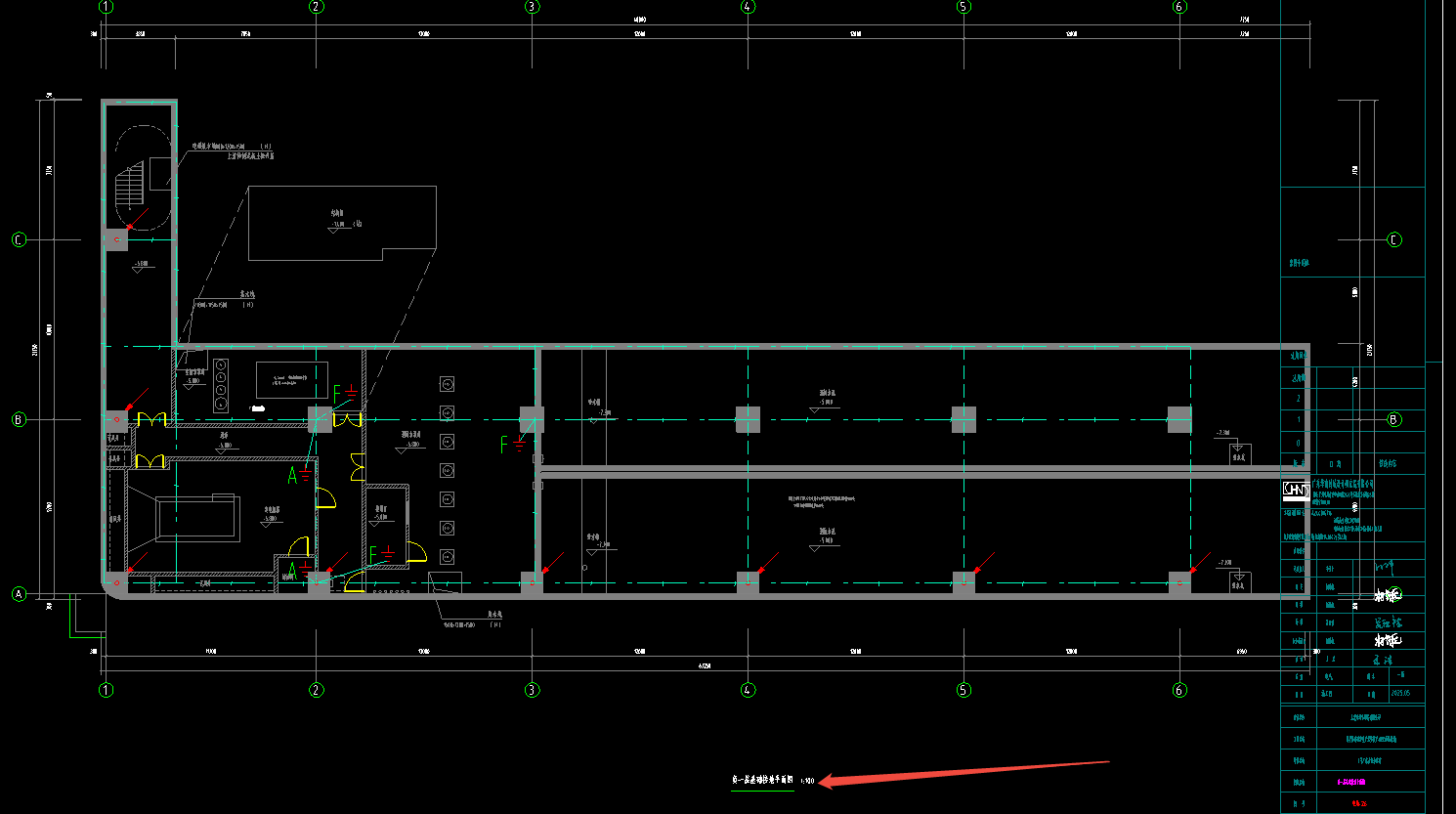
不是一层
解答网友:老牛
白银专家
一层与负一层分别计算,规格40*4扁钢
解答网友:于海波
专家
虚横线是利用圈梁基础钢筋做等电位接地。标注是仅配电室需要一圈40*4的扁钢在做一次基地接地,非所有都需要再用40*4的镀锌扁钢做基础接地。
提问网友:YYY
提问日期:2025-12-05 14:05:56

解答网友:我心长宽
专家
不是一层
解答网友:老牛
白银专家
一层与负一层分别计算,规格40*4扁钢
解答网友:于海波
专家
虚横线是利用圈梁基础钢筋做等电位接地。标注是仅配电室需要一圈40*4的扁钢在做一次基地接地,非所有都需要再用40*4的镀锌扁钢做基础接地。
评论0