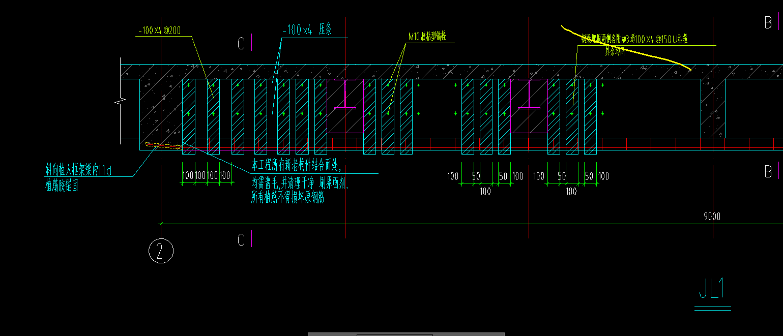
答疑:老师好,这几个大样矛盾吗?植筋和加的筋应该怎么看?谢谢!

提问网友:小白
提问日期:2025-12-05 10:38:07

植筋答疑解惑广联达服务新干线


解答网友:小野猫

铂金专家

应该是用于不同部位的,再看看图纸吧,未注明的都按C-C

0

评论0

请先
SL/T 769-2020 农田灌溉建设项目水资源论证导则.pdf
SL/T 769-2020 农田灌溉建设项目水资源论证导则.pdf
9分钟前 有人购买 去瞅瞅看
没有账号?注册  忘记密码?

社交账号快速登录

微信扫一扫关注
扫码关注后会自动登录网站