提问网友:浦
提问日期:2025-12-04 22:27:50
解答网友:欢乐心中飞雪
钻石专家
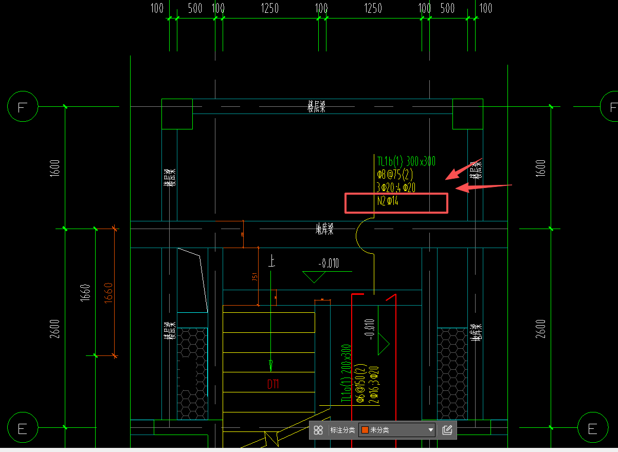
抗扭钢筋的锚固方式同底部受力筋
解答网友:GXZ
钻石专家
侧面钢筋的锚固值有一点小差异
解答网友:青山白马
黄金专家
梁侧面纵向构造钢筋G和受扭钢筋N的主要区别在于它们的用途、配置条件、直径大小以及锚固长度。
纵向构造钢筋G的作用包括增大梁骨架的刚度、约束混凝土的收缩裂缝、减少受拉区裂缝开展。它是在梁的腹板高度hw不小于450mm时配置的,其搭接与锚固长度可取为15d。而受扭钢筋N则是为了承担梁产生的扭矩,它的配置条件是梁的腹板高度hw不小于450mm,并且在弯矩、剪力和扭矩共同作用下的构件,需要进行构件受剪扭承载力计算。受扭钢筋的搭接长度为Ll或LlE,锚固长度为La或LaE,且锚固方式同框架梁下部纵筋。简单来说,抗扭钢筋比构造性腰筋粗,G很少有超过14的,N则不然。





评论0