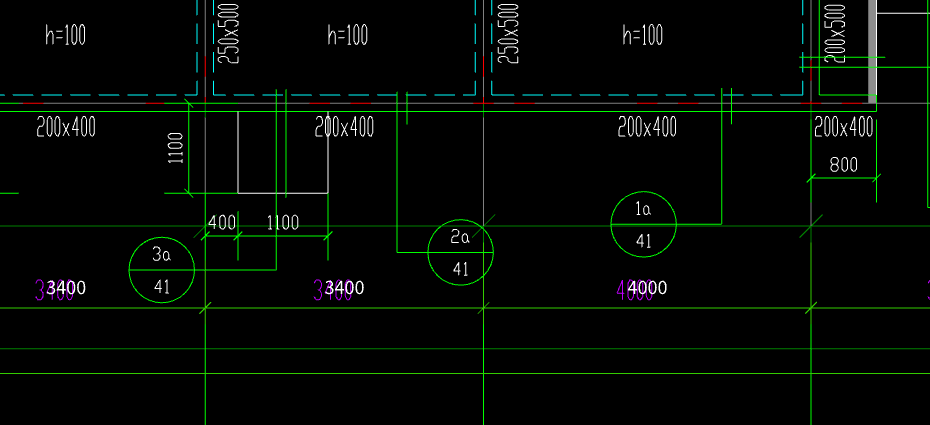
答疑:请问节点和节点之间的界限怎么看呢

提问网友:dlqx123
提问日期:2025-12-04 17:20:30

答疑解惑

2025-12-04 17:30:31 补充

广联达服务新干线

2025-12-04 17:30:59 补充

河北


解答网友:一杯红酒

黄金专家

3a就突出来的板那一块

1a、2a分界需要结合立面图看看

解答网友:钢筋撑起半边天

钻石专家

集合建筑图看看

建筑行业快速问答平台-答疑解惑

0

评论0

请先
GB∕T 11017.1-2024 额定电压66 kV(Um=72.5 kV)和110 kV(Um=126 kV)交联聚乙烯绝缘电力电缆及其附件 第1部分:试验方法和要求
GB∕T 11017.1-2024 额定电压66 kV(Um=72.5 kV)和110 kV(Um=126 kV)交联聚乙烯绝缘电力电缆及其附件 第1部分:试验方法和要求
3分钟前 有人购买 去瞅瞅看
没有账号?注册  忘记密码?

社交账号快速登录

微信扫一扫关注
扫码关注后会自动登录网站