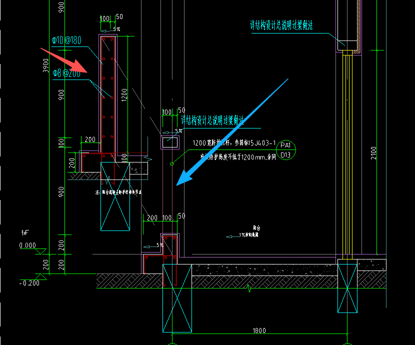
答疑:红色箭头处的节点是蓝色位置那里吗

提问网友:汉江河堤
提问日期:2025-12-04 10:37:56

箭头


已采纳
解答网友:Bel

白银专家

是的,图中的虚线可以清晰看出是此位置。答疑解惑

解答网友:可遇难求

钻石专家

是的

0

评论0

请先
NB/T 10839-2021 页岩气地震地质工程一体化技术规程
NB/T 10839-2021 页岩气地震地质工程一体化技术规程
10分钟前 有人购买 去瞅瞅看
没有账号?注册  忘记密码?

社交账号快速登录

微信扫一扫关注
扫码关注后会自动登录网站