答疑:请问这个独立基础是这样画的吗

提问网友:王哈哈
提问日期:2025-12-02 15:13:06

独立基础

独立基础是

答疑解惑

广联达服务新干线


已采纳
解答网友:星星

黄金专家

建筑行业快速问答平台-答疑解惑

解答网友:钢筋撑起半边天

钻石专家

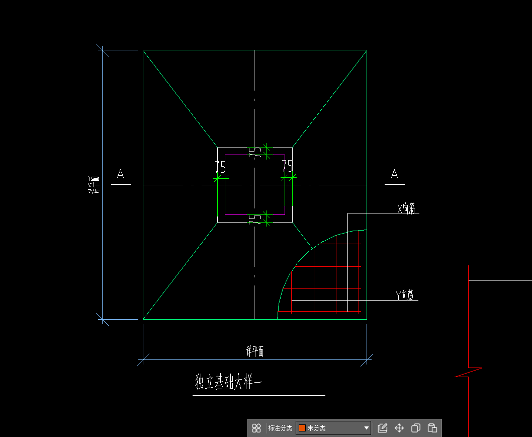
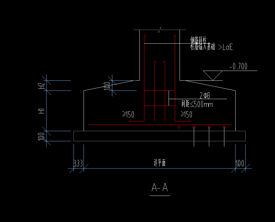
不对  是坡形的不是阶形的

解答网友:米老鼠

铂金专家

是的

你定义和画的不对,顶部是坡形的

解答网友:dwszhf2

白银专家

不对,缺少上下面连接的斜坡部分

解答网友:陈工

钻石专家

你选择的类型不对:

独立基础

独立基础是

0

评论0

请先
高清完整GB50348-2018 安全防范工程技术标准规范.pdf
高清完整GB50348-2018 安全防范工程技术标准规范.pdf
1分钟前 有人购买 去瞅瞅看
没有账号?注册  忘记密码?

社交账号快速登录

微信扫一扫关注
扫码关注后会自动登录网站