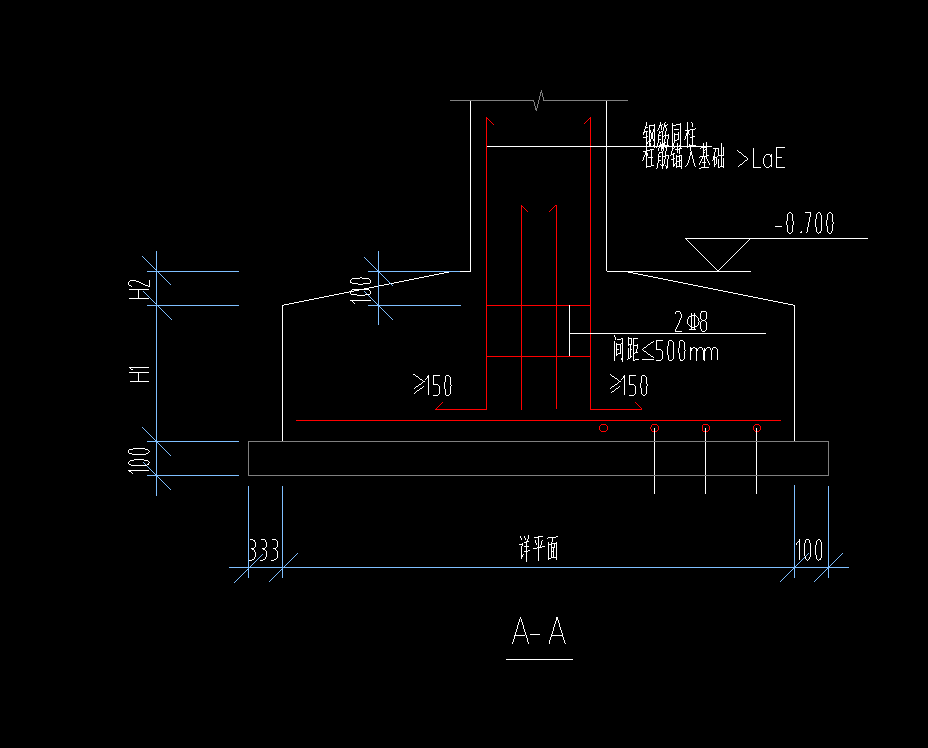
答疑:请问这个独立基础上面的尺寸应该怎么看

提问网友:王哈哈
提问日期:2025-12-02 14:46:27

独立基础

基础上

答疑解惑

2025-12-02 14:51:15 补充

h2的长宽怎么看


解答网友:石姐

铂金专家

广联达服务新干线

建筑行业快速问答平台-答疑解惑

解答网友:可遇难求

钻石专家

H1、H2都是300

0

评论0

请先
2020版国家电网最新雷区域分布图! 
2020版国家电网最新雷区域分布图! 
9分钟前 有人购买 去瞅瞅看
没有账号?注册  忘记密码?

社交账号快速登录

微信扫一扫关注
扫码关注后会自动登录网站