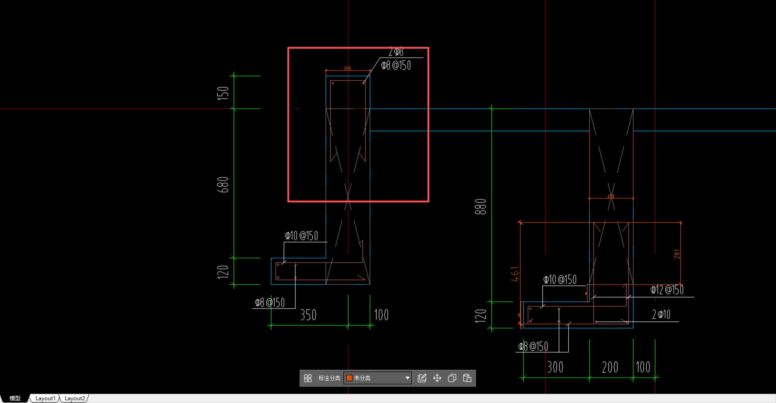
答疑:这个梁里面的钢筋怎么画?

提问网友:努力搬砖的康康
提问日期:2025-12-02 13:44:33

梁里面的钢筋


已采纳
解答网友:钢筋撑起半边天

钻石专家

用圈梁处理 箍筋在其它箍筋里输入开口的

解答网友:十年工程人

白银专家

上翻梁 用圈梁画  钢筋用异型箍筋输入

0

评论0

请先
GB50150-2024 电气装置安装工程电气设备交接试验标准,替代原2016版
GB50150-2024 电气装置安装工程电气设备交接试验标准,替代原2016版
6分钟前 有人购买 去瞅瞅看
没有账号?注册  忘记密码?

社交账号快速登录

微信扫一扫关注
扫码关注后会自动登录网站