答疑:桩承台顶部钢筋是否有锚固

提问网友:孙伟
提问日期:2025-11-30 15:44:32

桩

锚

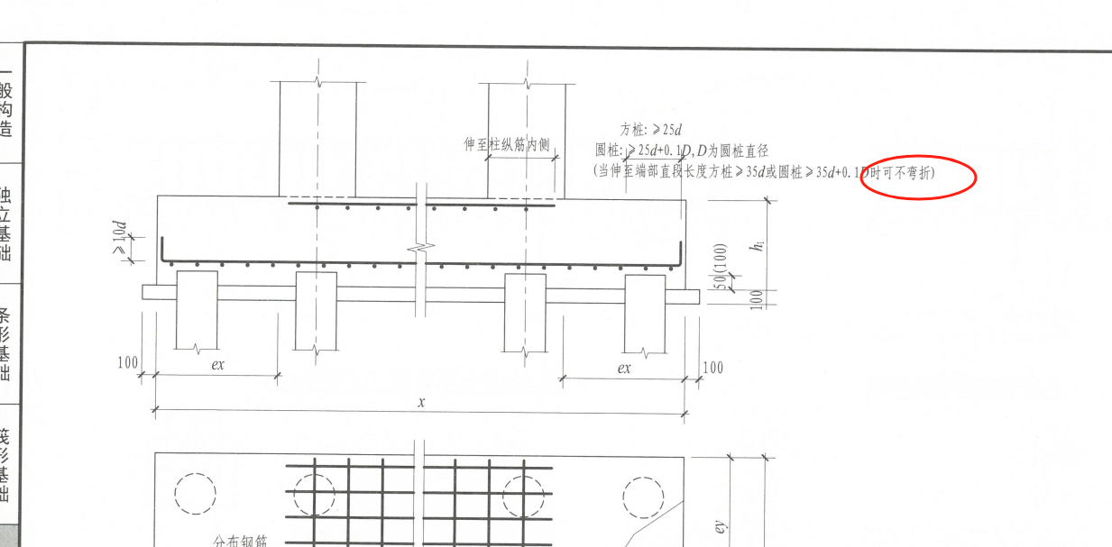
矩形桩承台顶部钢筋是否有锚固?有的话在图集哪里体现


解答网友:( 乓YUN乒)

白银专家

要自行判断,这不叫锚固,叫弯折

答疑解惑

解答网友:雪花飘 飘

铂金专家

是否有弯折,看结构文字说明

0

评论0

请先
高清无水印、带书签 20J910-3 模块化钢结构房屋建筑构造图集(OCR完整版)
高清无水印、带书签 20J910-3 模块化钢结构房屋建筑构造图集(OCR完整版)
6分钟前 有人购买 去瞅瞅看
没有账号?注册  忘记密码?

社交账号快速登录

微信扫一扫关注
扫码关注后会自动登录网站