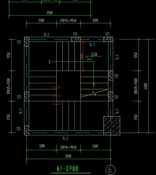
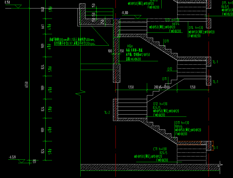
答疑:楼梯休息平台没有给配筋和厚度

提问网友:徐
提问日期:2025-11-29 10:10:09

厚度配筋答疑解惑


解答网友:djyy

黄金专家

需要设计完善

解答网友:SOFTICE

铂金专家

联系设计确认

0

评论0

请先
2024年版 国家电网输变电工程通用设计 35~750kV输电线路导线分册
2024年版 国家电网输变电工程通用设计 35~750kV输电线路导线分册
9分钟前 有人购买 去瞅瞅看
没有账号?注册  忘记密码?

社交账号快速登录

微信扫一扫关注
扫码关注后会自动登录网站