答疑:大神们请问这个预埋件怎么算呀

提问网友:佳人
提问日期:2025-11-28 17:14:51

预埋件怎么算预埋件

2025-11-28 17:15:57 补充

答疑解惑广联达服务新干线


解答网友:文竹

白银专家

分别计算钢板和钢筋的重量

解答网友:十年工程人

白银专家

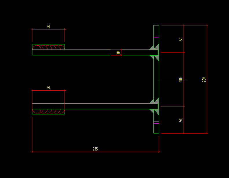
锚板的重量加锚筋的重量

锚板:0.3*0.2*10*7.85/1000

锚筋:0.00617*10*10*(0.235+0.06)*6/1000

解答网友:djyy

黄金专家

按面积乘以理论质量

0

评论0

请先
2025.11.01-《森林资源价值核算和资产评估技术规范》LY_T 2407-2025
2025.11.01-《森林资源价值核算和资产评估技术规范》LY_T 2407-2025
6分钟前 有人购买 去瞅瞅看
没有账号?注册  忘记密码?

社交账号快速登录

微信扫一扫关注
扫码关注后会自动登录网站